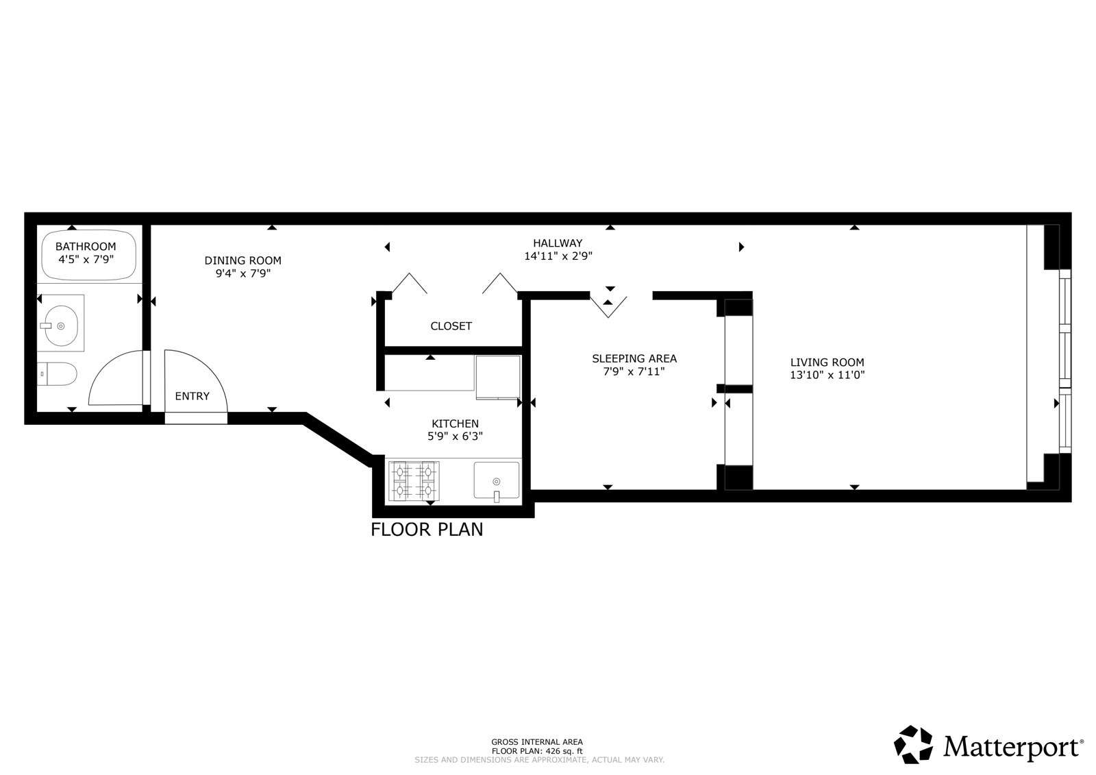
Residence 2B at 179 East 78th Street is a studio thoughtfully laid out to function like a one-bedroom, with clear separation between living, dining, and sleeping areas. A proper entry leads into a defined dining area, creating a natural transition into the living room (approximately 13'10" 11'0"), which serves as the central space of the home. The kitchen is efficiently positioned just off the dining area, maintaining both functionality and separation. Set apart from the living room is a separate interior room (approximately 7'9" 7'11"), currently used as a sleeping area. While not a legal bedroom, it provides a distinct and private space that allows the apartment to live more like a one-bedroom. Additional features include a full bathroom, a sizable closet, and a long hallway that adds privacy and separation from the main living space. A well-organized home in a prime Upper East Side location, offering flexibility and a layout that exceeds typical studio expectations.
Residence 2B at 179 East 78th Street is a studio thoughtfully laid out to function like a one-bedroom, with clear separation between living, dining, and sleeping areas. A proper entry leads into a defined dining area, creating a natural transition into the living room (approximately 13'10" 11'0"), which serves as the central space of the home. The kitchen is efficiently positioned just off the dining area, maintaining both functionality and separation. Set apart from the living room is a separate interior room (approximately 7'9" 7'11"), currently used as a sleeping area. While not a legal bedroom, it provides a distinct and private space that allows the apartment to live more like a one-bedroom. Additional features include a full bathroom, a sizable closet, and a long hallway that adds privacy and separation from the main living space. A well-organized home in a prime Upper East Side location, offering flexibility and a layout that exceeds typical studio expectations.
Listing Courtesy of Brown Harris Stevens Residential Sales LLC